Descripción
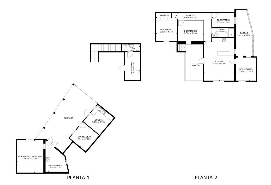
Casa Rural con Apartamento para Invitados y con 11hrs de agua incluidas para el riego en Fataga.~~¿Te imaginas despertar cada mañana rodeado de naturaleza, con el aire limpio de la montaña y el silencio como compañero? Esta propiedad en Fataga es mucho más que una casa: es la oportunidad de reconectar con lo esencial, de vivir al ritmo de la tierra y bajo el sol canario.~Ubicada en una zona tranquila y pintoresca del sur de Gran Canaria, esta finca ofrece un conjunto completo: una vivienda principal, un apartamento independiente para invitados y una extensa parcela cultivada, ideal para quienes sueñan con autosuficiencia, desconexión o un proyecto de vida alternativo.~~Agua de riego: uno de los mayores privilegios de esta propiedad es su derecho a 11horas de agua de riego. Este recurso tan valorado garantiza el cuidado de tu huerta, árboles frutales y jardín durante todo el año. Una ventaja real para los amantes del cultivo, la jardinería o simplemente para quien valora la sostenibilidad en su hogar.~~La casa principal: amplitud y luz natural~Desde una escalera exterior accedes a la terraza que da entrada a la vivienda. Dentro, te recibe un salón amplio con cocina abierta y comedor integrado, lleno de luz natural. Cuenta con tres dormitorios dobles, uno individual y un baño completo. En la parte trasera, un patio cubierto ofrece un espacio íntimo para relajarte en la sombra.~~Apartamento para invitados: funcional y versátil~Junto a la casa principal se encuentra un edificio de una sola planta originalmente usado como almacén, ahora transformado en un cómodo apartamento. Incluye un dormitorio, cocina independiente, salón espacioso y una habitación adicional perfecta como oficina, trastero o dormitorio extra.~~Espacios exteriores con carácter~El entorno de la finca está lleno de rincones con encanto: un rincón para desayunar junto a un muro de piedra natural, una veranda con zona de estar rústica, y una barbacoa lista para reuniones con amigos o familia. Todo rodeado de un paisaje rural auténtico que invita a desconectar.~~Más comodidades:~•Aire acondicionado con bomba de calor~•Agua caliente por energía solar~•4 plazas de aparcamiento dentro de la finca~•2 trasteros adicionales~•Se vende amueblada (salvo herramientas, electrodomésticos y objetos personales, negociables)~~La finca está repleta de árboles frutales y cultivos: naranjos, limoneros, higos, aguacates, guayabas, moras, ciruelos, olivos, nísperos… además de una huerta activa con berenjenas, pimientos, hierbas aromáticas y más. Todo gracias al agua de riego que da vida a cada rincón verde.~~Fataga pertenece al municipio de San Bartolomé de Tirajana, y aunque se siente como un refugio natural, está a solo 30 minutos de las playas, el mar y la oferta turística de Maspalomas, Playa del Inglés o Meloneras.~Tu refugio en la montaña te espera: una vida más sencilla, fértil y en calma empieza aquí.~~Contáctanos para más información o una visita.~~Gastos e impuestos no incluidos en el precio. La compra conlleva impuestos y gastos de formalización. Base imponible: el mayor entre precio de compraventa y valor de referencia catastral. Orientativo: 2ª mano ITP 6,5% + notaría/registro aprox. 0,3%–0,8% (aranceles variables según precio, nº de copias y complejidad). Si hay hipoteca: tasación y costes bancarios. Entregaremos una estimación detallada para la propiedad teniendo en cuenta las circunstancias concretas del comprador.~Anuncio sujeto a errores, cambios de precio, omisión y/o retirada del mercado sin aviso previo. ~
Tour Virtual
https://crm.inmovilla.com/fotosvr/tour.php?cod=21455837.2914
A+
A
B
C
D
E
F
G
H




























































































































































