Descripción
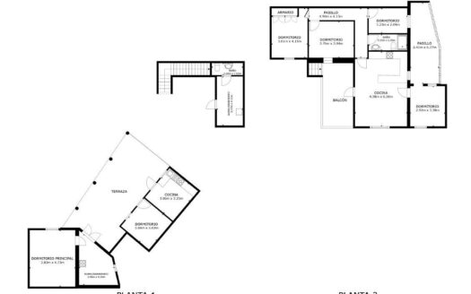
Amplia vivienda con azotea privada con terreno de 830 m² en El Salobre – San Bartolomé de Tirajana.~Te presentamos esta magnífica propiedad ubicada en El Salobre, al sur de Gran Canaria. Con acceso directo desde la vía pública, esta vivienda destaca por su amplitud, funcionalidad y gran superficie exterior de uso privativo. Ideal para familias, inversores o quienes buscan tranquilidad con espacio y posibilidades de personalización.~~Planta Alta – Vivienda principal~- Elevada respecto al nivel de la calle en su parte norte.~- Acceso directo e independiente.~- Distribución: 4 dormitorios, salón, cocina, baño, tres pasillos, armario empotrado, —– ~- Trastero interior de 10,52 m², escaleras interiores y exteriores, y tres balcones.~- Superficie útil: 179,42 m²~- Superficie construida: 193,76 m²~~Planta Azotea – Uso privativo exclusivo~- Acceso desde escalera interior.~- Compuesta por cuarto pileta y una amplia azotea, perfecta como espacio de ocio, relax o solárium.~- Superficie útil: 154,97 m²~- Superficie construida: 27,76 m²~~Resumen de superficies:~- Total superficie útil: 334,39 m²~- Total superficie construida: 221,52 m²~- Parcela de terreno privativo: 830,53 m²~Características técnicas destacadas:~- Cimentación: zapatas aisladas de hormigón armado con vigas de atado.~- Estructura vertical: muros de carga y pilares (refuerzos metálicos en zonas específicas).~- Estructura horizontal: vigas de hormigón armado y forjados con semiviguetas ; placas alveolares en ampliaciones de terraza.~- Fachadas: muros de hormigón vibrado (12–20 cm) enfoscados y pintados en color~amarillo.~~- Soleras exteriores: hormigón lavado sobre solera de 15 cm con capa de regularización.~- Estado general: buena conservación, con múltiples posibilidades de mejora o~redistribución según necesidades.~Una propiedad versátil en una ubicación tranquila del sur de la isla, con amplios espacios interiores y exteriores, ideal para quienes valoran la privacidad, la amplitud y el potencial.~~¡Solicita más información o concierta una visita!~~¡No dejes pasar esta oportunidad de vivir en una casa que lo tiene todo! Contacta con~nosotros y agenda tu visita. Tu nuevo hogar te está esperando.~~¡Haz tu sueño realidad!~~~ Información adicional:~El precio no incluye impuestos de transferencia, gastos notariales, gastos de registro ni cualesquiera otros honorarios que puedan corresponder según ley. Los datos proporcionados son orientativos y pueden estar sujetos a errores u omisiones involuntarias.~~~~
A+
A
B
C
D
E
F
G
H




























































































































































