Description
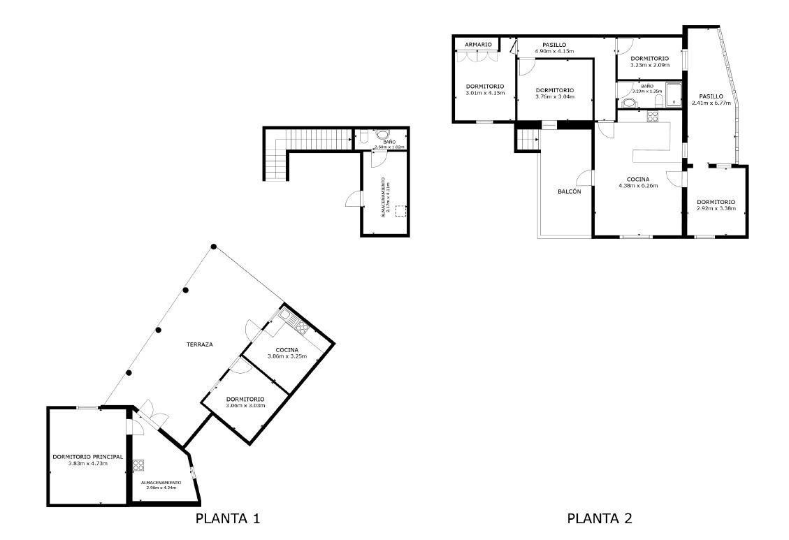
Landhaus mit Gästeapartment und 9,5 Stunden Bewässerungswasser – Fataga, Gran Canaria.~~Stell dir vor, du wachst jeden Morgen umgeben von Natur auf – mit frischer Bergluft und wohltuender Stille. Diese Immobilie in Fataga ist mehr als nur ein Haus – sie ist eine Einladung, zurück zu den Wurzeln zu finden, im Einklang mit der Erde und unter der kanarischen Sonne zu leben.~~In einer ruhigen und malerischen Gegend im Süden von Gran Canaria gelegen, bietet dieses Anwesen alles, was du brauchst: ein Haupthaus, ein separates Gästeapartment und ein großzügiges, bewirtschaftetes Grundstück. Ideal für alle, die von Selbstversorgung, Entschleunigung oder einem alternativen Lebensprojekt träumen.~~Bewässerungswasser: ein echter Mehrwert~Ein besonderes Highlight ist das Recht auf 11 Stunden Bewässerungswasser – ein äußerst wertvoller Vorteil für die Pflege des Gartens, der Obstbäume und Gemüsebeete das ganze Jahr über. Perfekt für Gartenliebhaber, Selbstversorger oder alle, die Nachhaltigkeit schätzen.~~Das Haupthaus: hell, großzügig und einladend~Über eine Außentreppe gelangst du zur Terrasse und in das Wohnhaus. Innen erwartet dich ein heller Wohnbereich mit offener Küche und Essplatz. Es gibt drei Doppelschlafzimmer, ein Einzelzimmer sowie ein Badezimmer mit Dusche. Hinten befindet sich ein überdachter Innenhof – ein geschützter Ort zum Entspannen im Schatten.~~Gästeapartment: praktisch und flexibel~Direkt neben dem Haupthaus steht ein eingeschossiges Gebäude, ehemals als Lager genutzt, jetzt zu einem komfortablen Apartment umgebaut. Es verfügt über ein Schlafzimmer, eine separate Küche, ein geräumiges Wohnzimmer und einen zusätzlichen Raum – ideal als Büro, Abstellraum oder weiteres Schlafzimmer.~~Außenbereiche mit Charakter~Die Außenanlagen bieten viele gemütliche Plätze: eine Frühstücksecke an einer Natursteinmauer, eine rustikale Veranda mit Sitzbereich und ein Grillplatz für gesellige Stunden mit Freunden und Familie. Das Ganze umgeben von authentischer Landschaft – perfekt zum Abschalten.~~Weitere Ausstattung:~~Klimaanlage mit Wärmepumpe~Warmwasser über Solarpanels~4 Stellplätze auf dem Grundstück~2 zusätzliche Abstellräume~Möbliert zu verkaufen (ausgenommen Werkzeuge, bestimmte Geräte und persönliche Gegenstände – verhandelbar)~~Ein fruchtbares Stück Erde~Auf dem Grundstück wachsen zahlreiche Obstbäume und Nutzpflanzen: Orangen, Zitronen, Feigen, Avocados, Guaven, Pflaumen, Oliven, Mispeln und Beeren. Dazu ein gepflegter Gemüse- und Kräutergarten mit Auberginen, Paprika, Basilikum, Petersilie, Minze, Rosmarin, Thymian und mehr – dank des eigenen Bewässerungswassers.~~Fataga gehört zur Gemeinde San Bartolomé de Tirajana. Trotz der ruhigen Lage bist du in nur 30 Minuten an den Stränden, Dünen und im lebendigen Zentrum von Maspalomas, Playa del Inglés oder Meloneras.~~ Dein Rückzugsort in den Bergen wartet – ein Leben voller Ruhe, Fruchtbarkeit und Klarheit beginnt hier.~Kontaktiere uns für weitere Informationen oder einen Besichtigungstermin.~~Öffentlicher Verkaufspreis – Enthält keine Kosten. Steuern und sonstige gesetzlich vom Käufer zu tragende Aufwendungen. Immobilie unterliegt grundsätzlich der ITP in Höhe von 6,5 %; Ausnahmen gemäß geltender Vorschriften möglich. Bemessungsgrundlage: der höhere Wert zwischen: 1) Kaufpreis; 2) Gutachten; 3) Katasterreferenzwert. Notar- und Grundbuchkosten zwischen ca. 0,3 % – 0,8 % gemäß Gebührentarifen. Finanzierung: Hypothekenkosten, Bewertung und Bankgebühren vom Käufer je nach Bedarf und Wahl zu tragen. Immobilienagenturhonorar vom Verkäufer zu tragen. Kaufabwicklung und Kaufbedingungen vorbehaltlich ausdrücklicher Annahme durch den Verkäufer. Für gesetzlich vorgeschriebene Verbraucherinformationen und Unterlagen können Sie uns kontaktieren.~Angebot freibleibend, Irrtümer, Preisänderungen, Auslassungen und/oder Rücknahme vom Markt ohne vorherige Ankündigung vorbehalten.~
Tour Virtual
https://crm.inmovilla.com/fotosvr/tour.php?cod=21455837.2914
A+
A
B
C
D
E
F
G
H



























































































































































