Descripción
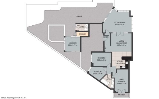
Presentamos una propiedad única en una ubicación inmejorable, a escasos metros de la playa de Mogán y junto al canal y la marina. Este exclusivo ático, situado en esquina, destaca por su espectacular terraza exterior y una amplia azotea transitable con muchas posibilidades. Entre ambas superficies suman más de 100 m² de espacio exterior privado, un privilegio poco habitual en la zona que ofrece infinitas opciones para disfrutar del extraordinario clima del sur de Gran Canaria.~~El edificio se encuentra en perfecto estado de conservación y dispone de ascensor. Al acceder a la vivienda, nos recibe una elegante entrada que conduce a un luminoso salón con cocina de diseño abierta, donde cada rincón goza de vistas al exterior. Desde el salón y el dormitorio principal se accede directamente a la terraza, un espacio perfecto para el relax o para disfrutar de comidas al aire libre.~~Desde la terraza, una escalera lleva a la espectacular azotea transitable, equipada con toma de agua y luz, ideal para crear una zona chill out o simplemente tomar el sol con total privacidad, mientras se disfruta de unas agradables vistas al mar.~~La propiedad presume de altas calidades de construcción, cocina moderna de diseño y sistema de aire acondicionado centralizado, ofreciendo máximo confort durante todo el año.~~Su ubicación es inmejorable: a tan solo unos metros de la playa y rodeada de una variada oferta gastronómica y de ocio. El encantador Puerto de Mogán se encuentra a solo cinco minutos a pie, permitiendo disfrutar del ambiente marinero y de sus exclusivos restaurantes y boutiques.~~&#&#&#Distribución~Este ático se distribuye en una sola planta y tiene un amplio dormitorio con acceso a la terraza, un baño, un salón cocina americana.~~&#&#&#Aviso legal~El plano publicado debe ser considerado como croquis orientativo, no como reflejo exacto de la realidad física del inmueble, pudiendo existir inexactitud en el trazado del plano y en las medidas.~~Precio no incluye impuestos y gastos de la compraventa. Los más importantes son: Impuesto de Transmisiones Patrimoniales (6,5%), así como los honorarios de Notario, Registro de la Propiedad y gestoría. Generalmente debemos calcular aquí un 8-10% del precio, aunque le entregaremos una estimación detallada para cada propiedad concreta por la que Vd. se interese.~
Tour Virtual
https://crm.inmovilla.com/fotosvr/tour.php?cod=26628271.2934
A+
A
B
C
D
E
F
G
H








































































